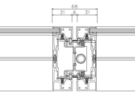
INwand® System small s
Einseitig frontbündiges Verglasungssystem mit 31mm AluRahmen

 

Small-line S Verglasung

Der Standard – Glasrahmentyp kann auch mit einseitiger Verglasung und einem glaslosem Abdeckrahmen ausgeführt werden.

Diese preisgünstige Lösung ergibt gegenüber dem Doppelrahmen ein einseitig strukturierteres Erscheinungsbild in Pfosten – Riegelkonstruktion mit dem Vorteil hier z.B. Jalousien einfach nachrüsten zu können.

 

Detailschnitt: