INwand® System small m
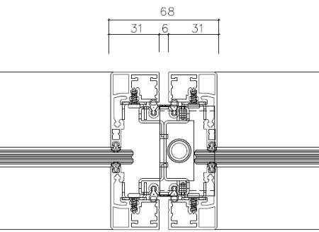
Mittiges Verglasungssystem

 

Small-line M Verglasung

Bei diesem Rahmentyp erfolgt die Verglasung mit einer mittig sitzenden VSG-Scheibe in der Außendicke von ca. 8 mm.

Hier ist Rahmen und Glasscheibe getrennt voneinander zu montieren.

Diese Verglasungsart ergibt eine strukturierte Wandfläche im Erscheinungsbild einer Pfosten – Riegelkonstruktion.

Die VSG-Scheibe kann im Aufbau unterschiedlich sein und entsprechende Schalldämmwerte erbringen.

Detailschnitt: