INwand® System small d
Glas-Trennwandsystem,frontbündig, Doppelverglasung, 6+8mm ESG, mit 31mm-Einfassungsrahmen

 

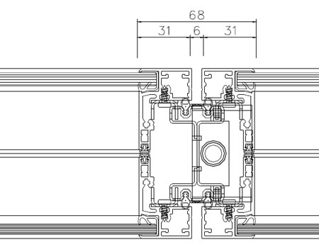
Small-line D Verglasung

Dieser Standard-Glasrahmentyp hat eine Ansichtsbreite von 31mm.
Bei 2 Rahmenfeldern nebeneinander mit einer 6mm Elementfuge ergeben
sich 68mm vertikale Pfostenbreite in Übereinstimmung mit dem Produkt
HORIZONTE (Fa. König+Neurath)

Der Doppelrahmen kann, z.B. zur Verbesserung der Schalldämmung, unter-
schiedliche Glasdicken von 6-8mm ESG aufnehmen.

Zwischen den Glasscheiben können horizontale- und vertikale Jalousien
staubgeschütz eingesetzt werden.

Die Rahmenprofile sind aus Aluminium EV1/E6 natur eloxiert oder in
RAL-Farben pulverbeschichtet wählbar.

HINWEIS: G30-Glasrahmen (TW G30 mit Oberlichtverglasungen) sind mit
einer dritten, mittig eingebauten G30-Glasscheibe welche im Glaseinstand
mittels Stahlwinkeln gehalten wird ausgeführt.

Detailschnitt: