INwand® System flush
Glas-Trennwandsystem,frontbündig verklebte Doppelverglasung, 6+8mm ESG, ohne Einfassungsrahmen

 

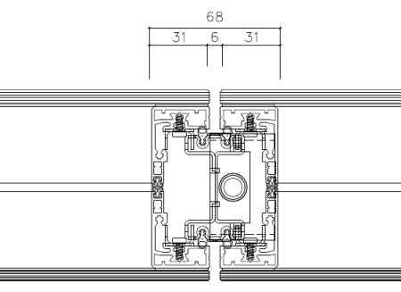
Small-line flush Verglasung

Bei diesem Rahmentyp erfolgt die Verglasung ohne einen außen übergreifenden Rahmen.

Die Glasscheiben sind im Randbereich in Glasrahmenfarbe lackiert und auf den Rahmen aufgeklebt. Die Glaskanten sind mit dem Rahmen bündig. Dadurch entsteht eine flächenbündige Wandverkleidung.

 

Detailschnitt: